こちらの物件は現在募集しておりません。
新築一戸建住宅
こちらの物件は現在募集しておりません。
| 所在地 | 埼玉県川口市戸塚5丁目 | ||
|---|---|---|---|
| 交通 | |||
| 取扱い会社 |
小森設計株式会社 〒336-0017 埼玉県さいたま市南区南浦和2丁目40-12 埼玉県知事(9)第13293号 (公社)埼玉県宅地建物取引業協会会員 (公社)首都圏不動産公正取引協議会加盟 (公社)全国宅地建物取引業保証協会 |
||
| 所在地 | 物件の住所を表示。(詳細住所は表示していない場合もある) | ||
|---|---|---|---|
| 交通 | 物件(部屋)の沿線駅・バス停を表示。(複数駅・バス停の利用が可能な場合は最大3件まで) | ||
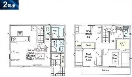
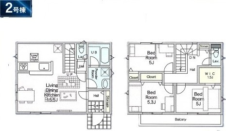
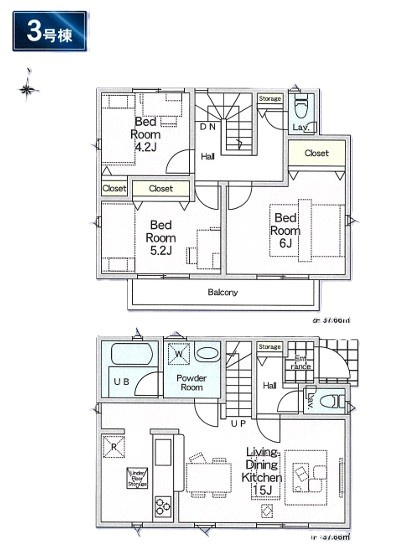
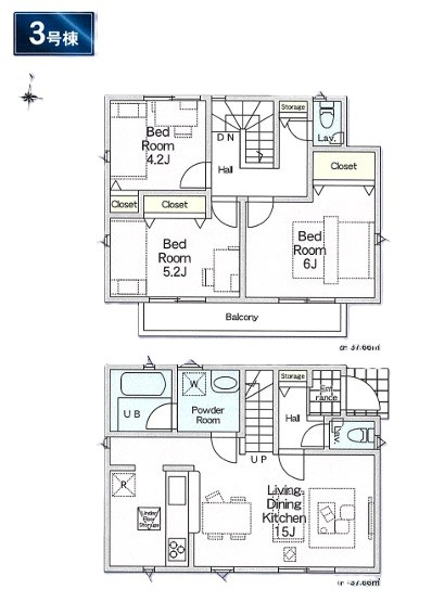
| 間取り/詳細 | 数字は居室数を表示。LDKはそれぞれ「リビング」「ダイニング」「キッチン」、S(納戸)とは「納戸」「サービスルーム」「マルチルーム」「フリールーム」など建築基準法第28条に適合していないため、居室と認められない納戸その他の部分を表す。 | ||
| 価格 | 販売されている住戸の価格を表示。仲介手数料は含まない。 | ||
| 管理費 | 共同住宅の設備その他共用部分の維持および管理をするために必要な費用を表示。 | ||
| 修繕積立金 | 共用部分の修繕のために積立てる金額を表示。 | ||





















【区画図】