新築一戸建住宅
「利回り」は、当該不動産の1年間の予定賃料収入の不動産取得対価に対する割合であり、公租公課その他当該物件を維持するために必要な費用の控除前のものです。
また、予定賃料収入が確実に得られる事を保証するものではありません。

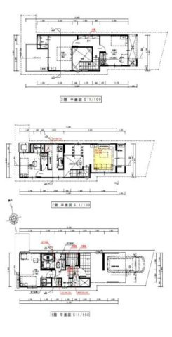
新築の戸建て物件で、夢のマイホーム生活を送りませんか。建物面積は89.84㎡となっており広々とした空間で生活することができます。訪問者をカメラで確認できるTVインターホン設置済み。洗面化粧台には、鏡や照明がついており身支度に利用できます。当社スタッフが住まい探しをサポート致しますので、埼玉高速鉄道川口元郷駅周辺へお引っ越しをするなら、ぜひお問い合わせください。

※地図上の物件位置は近隣に物件が所在することを表すものであり、実際の物件所在地とは異なる場合がございます。
048-813-8825
営業時間:09:00~18:00 / 定休日:水曜日
| 所在地 | 埼玉県川口市元郷3丁目 | ||
|---|---|---|---|
| 交通 |
埼玉高速鉄道 「川口元郷」駅
徒歩14分 京浜東北線 「川口」駅 バス11分 元郷四丁目会館下車 徒歩2分 |
||
| 価格 | 4,699万円 | ||
| 間取り |
4LDK
LDK 17.5帖 / 洋室 6.0帖 / 洋室 5.1帖 / 洋室 5.0帖 / 洋室 4.4帖 / |
||
| 築年月(築年数) | 2025年 7月(新築) | 主要採光面 | |
| 建物構造 | 木造 | 階数 | 2階建 |
| 私道負担面積 | セットバック | ||
| 接道状況 | 一方 (北側 公道5.4m) | ||
| 建ぺい率/容積率 | 60%/ 200% | 土地権利 | 所有権 |
| 地目 | 地勢 | ||
| 土地の権利形態 | |||
| 都市計画 | 市街化区域 | 用途地域 | 準工業地域 |
| その他法令上の制限 | |||
| 国土法届出 | 不要 | 取引態様 | 仲介 |
| 現況 | 完成済み | 引渡し | 相談 |
| 駐車場 | 空き台数:2台 、 有 | ||
| 設備条件 | 公共下水 / 公営水道 / 都市ガス / 新婚さん向け / ファミリー向け / 24時間換気システム / 2面バルコニー / 食器洗い乾燥機 / システムキッチン / 浴室乾燥機 / 温水洗浄便座 / TVモニタ付インターホン | ||
| その他条件 | |||
| 備考 | 24時間換気システムを利用可能です。広々としたゆとりある室内が魅力的な、4LDKの物件です。バス停が徒歩3分圏内にあります。こちらは清潔感のある新築戸建て物件です。お客様の住まい探しをサポート致します。川口市で不動産の購入を検討しているのであれば、お気軽にお問い合わせください。 | ||
| 周辺の学校 | 川口市立元郷南小学校(約781m / 徒歩10分)、川口市立領家中学校(約656m / 徒歩9分) | ||
| 建築確認番号 | 第24UDI1W建09415号 | 物件番号 | 95245101 |
| 情報公開日 | 2026年2月5日 | 次回更新予定日 | 2026年2月19日 |
| 取引条件の有効期限 | 2026年2月19日 | ||
| 取扱い会社 |
小森設計株式会社 〒336-0017 埼玉県さいたま市南区南浦和2丁目40-12 埼玉県知事(9)第13293号 (公社)埼玉県宅地建物取引業協会会員 (公社)首都圏不動産公正取引協議会加盟 (公社)全国宅地建物取引業保証協会 |
||
048-813-8825
営業時間:09:00~18:00 / 定休日:水曜日
| 所在地 | 物件の住所を表示。(詳細住所は表示していない場合もある) | ||
|---|---|---|---|
| 交通 | 物件(部屋)の沿線駅・バス停を表示。(複数駅・バス停の利用が可能な場合は最大3件まで) | ||
| 間取り/詳細 | 数字は居室数を表示。LDKはそれぞれ「リビング」「ダイニング」「キッチン」、S(納戸)とは「納戸」「サービスルーム」「マルチルーム」「フリールーム」など建築基準法第28条に適合していないため、居室と認められない納戸その他の部分を表す。 | ||
| 価格 | 販売されている住戸の価格を表示。仲介手数料は含まない。 | ||
| 管理費 | 共同住宅の設備その他共用部分の維持および管理をするために必要な費用を表示。 | ||
| 修繕積立金 | 共用部分の修繕のために積立てる金額を表示。 | ||

新築一戸建住宅
| 価格 |
値下げ:2026/01/29 2,999 万円 | ||
|---|---|---|---|
| 間取り | 4LDK | 築年月(築年数) | 2025年 4月 (新築) |
| 建物面積 | 96.88㎡ | 土地面積 | 75.17㎡ |
| 住所 | 埼玉県川口市柳崎3丁目 | ||
| 交通 |
武蔵野線「東浦和」駅 徒歩15分
|
||
新築一戸建住宅
| 価格 |
値下げ:2026/01/26 3,880 万円 | ||
|---|---|---|---|
| 間取り | 3LDK | 築年月(築年数) | 2025年 11月 (新築) |
| 建物面積 | 77.76㎡ | 土地面積 | 112.65㎡ |
| 住所 | 埼玉県川口市戸塚5丁目 | ||
| 交通 |
武蔵野線「東川口」駅 徒歩15分 埼玉高速鉄道「戸塚安行」駅 徒歩17分 埼玉高速鉄道「東川口」駅 徒歩15分 |
||
新築一戸建住宅
| 価格 | 4,290 万円 ~ 4,490 万円 | ||
|---|---|---|---|
| 間取り | 4LDK | 築年月(築年数) | 2025年 12月 (建築中) |
| 建物面積 | 102.87㎡ ~ 111.78㎡ | 土地面積 | 54.76㎡ ~ 65.19㎡ |
| 住所 | 埼玉県川口市戸塚東2丁目 | ||
| 交通 |
武蔵野線「東川口」駅 徒歩17分 埼玉高速鉄道「東川口」駅 徒歩17分
|
||
新築一戸建住宅
| 価格 | 4,680 万円 | ||
|---|---|---|---|
| 間取り | 4LDK | 築年月(築年数) | 2026年 6月予定 (建築中) |
| 建物面積 | 119.07㎡ | 土地面積 | 66.12㎡ |
| 住所 | 埼玉県川口市大字里 | ||
| 交通 |
埼玉高速鉄道「鳩ヶ谷」駅 徒歩12分
|
||
【外観】