新築一戸建住宅 分譲
「利回り」は、当該不動産の1年間の予定賃料収入の不動産取得対価に対する割合であり、公租公課その他当該物件を維持するために必要な費用の控除前のものです。
また、予定賃料収入が確実に得られる事を保証するものではありません。

販売中 1号棟
|
情報公開日:2025年11月15日 / 次回更新予定日:2025年11月29日 |
|
| 価格 | 3,899 万円 |
|---|---|
| 間取り | 3LDK+S(納戸) |
| 築年月 | 2025年 10月 |
| 階数 | 3階建 |
| 建物面積/坪数 | 108.09㎡/32.69坪 |
| 土地面積/坪数 | 81.70㎡/24.71坪 | 私道負担面積 |
| 土地の権利形態 | |
| 引渡し | 相談 |
| 取引態様 | 仲介 |
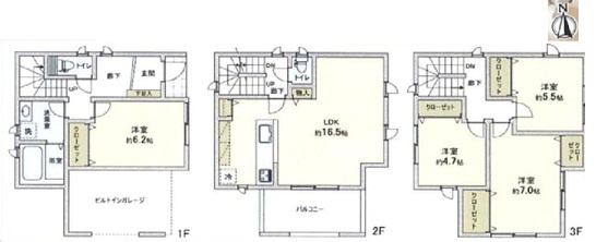
| 間取り詳細 |
LDK 18.0帖 洋室 7.2帖 洋室 7.0帖 洋室 6.0帖 S(納戸) 2.5帖 |
新婚さん向け / ファミリー向け / 24時間換気システム / 2面バルコニー / システムキッチン / 浴室乾燥機 / 温水洗浄便座 / ウォークインクロゼット / TVモニタ付インターホン / 複層ガラス /
有 、 空き台数:1台
販売中 2号棟
|
情報公開日:2025年11月15日 / 次回更新予定日:2025年11月29日 |
|
| 価格 | 3,899 万円 |
|---|---|
| 間取り | 4LDK |
| 築年月 | 2025年 10月 |
| 階数 | 3階建 |
| 建物面積/坪数 | 111.03㎡/33.58坪 |
| 土地面積/坪数 | 81.70㎡/24.71坪 | 私道負担面積 |
| 土地の権利形態 | |
| 引渡し | 相談 |
| 取引態様 | 仲介 |
| 間取り詳細 |
LDK 17.9帖 洋室 7.4帖 洋室 6.5帖 洋室 4.8帖 洋室 4.1帖 |
新婚さん向け / ファミリー向け / 24時間換気システム / 2面バルコニー / システムキッチン / 浴室乾燥機 / 温水洗浄便座 / ウォークインクロゼット / TVモニタ付インターホン / 複層ガラス /
有 、 空き台数:1台
※地図上の物件位置は近隣に物件が所在することを表すものであり、実際の物件所在地とは異なる場合がございます。
048-813-8825
営業時間:09:00~18:00 / 定休日:水曜日
| 所在地 | 埼玉県川口市領家3丁目 | ||
|---|---|---|---|
| 交通 |
日暮里舎人ライナー 「谷在家」駅
徒歩31分 埼玉高速鉄道 「川口元郷」駅 徒歩35分 バス8分 領家三丁目(川口市)下車 徒歩2分 |
||
| 価格 | 3,899万円 | 間取り | 3LDK+S(納戸) ・ 4LDK |
| 総戸数 | 2戸 | 販売戸数 | 2戸 |
| 建物構造 | 木造 | ||
| 建ぺい率/容積率 | 60%/ 200% | 土地権利 | 所有権 |
| 地目 | 地勢 | ||
| 土地の権利形態 | |||
| 都市計画 | 市街化区域 | 用途地域 | 準工業地域 |
| その他法令上の制限 | |||
| 国土法届出 | 不要 | ||
| 設備条件 | 公共下水 / 公営水道 / 都市ガス | ||
| 備考 | |||
| 周辺の学校 | 川口市立領家小学校(約448m / 徒歩6分)、川口市立領家中学校(約1,113m / 徒歩14分) | ||
| 建築確認番号 | 第HPA-25-04029-1号他 | 物件番号 | 96299802 |
| 取扱い会社 |
小森設計株式会社 〒336-0017 埼玉県さいたま市南区南浦和2丁目40-12 埼玉県知事(9)第13293号 (公社)埼玉県宅地建物取引業協会会員 (公社)首都圏不動産公正取引協議会加盟 (公社)全国宅地建物取引業保証協会 |
||
048-813-8825
営業時間:09:00~18:00 / 定休日:水曜日
| 所在地 | 物件の住所を表示。(詳細住所は表示していない場合もある) | ||
|---|---|---|---|
| 交通 | 物件(部屋)の沿線駅・バス停を表示。(複数駅・バス停の利用が可能な場合は最大3件まで) | ||
| 間取り/詳細 | 数字は居室数を表示。LDKはそれぞれ「リビング」「ダイニング」「キッチン」、S(納戸)とは「納戸」「サービスルーム」「マルチルーム」「フリールーム」など建築基準法第28条に適合していないため、居室と認められない納戸その他の部分を表す。 | ||
| 価格 | 販売されている住戸の価格を表示。仲介手数料は含まない。 | ||
| 管理費 | 共同住宅の設備その他共用部分の維持および管理をするために必要な費用を表示。 | ||
| 修繕積立金 | 共用部分の修繕のために積立てる金額を表示。 | ||

新築一戸建住宅
| 価格 |
値下げ:2025/10/30 3,499 万円 | ||
|---|---|---|---|
| 間取り | 4LDK | 築年月(築年数) | 2025年 4月 (新築) |
| 建物面積 | 96.88㎡ | 土地面積 | 75.17㎡ |
| 住所 | 埼玉県川口市柳崎3丁目 | ||
| 交通 |
武蔵野線「東浦和」駅 徒歩15分
|
||
中古一戸建住宅
| 価格 |
値下げ:2025/11/07 3,699 万円 | ||
|---|---|---|---|
| 間取り | 3LDK+S(納戸) | 築年月(築年数) | 2001年 2月 (築24年) |
| 建物面積 | 101.02㎡ | 土地面積 | 102.05㎡ |
| 住所 | 埼玉県川口市長蔵3丁目 | ||
| 交通 |
埼玉高速鉄道「戸塚安行」駅 徒歩13分
|
||
一戸建住宅
| 価格 |
値下げ:2025/09/01 4,250 万円 | ||
|---|---|---|---|
| 間取り | 4LDK | 築年月(築年数) | 2024年 4月 (築1年) |
| 建物面積 | 94.60㎡ | 土地面積 | 100.05㎡ |
| 住所 | 埼玉県川口市大字赤井 | ||
| 交通 |
埼玉高速鉄道「鳩ヶ谷」駅 徒歩25分
|
||
中古一戸建住宅
| 価格 |
値下げ:2025/08/31 4,180 万円 | ||
|---|---|---|---|
| 間取り | 4LDK | 築年月(築年数) | 2007年 6月 (築18年) |
| 建物面積 | 109.29㎡ | 土地面積 | 110.58㎡ |
| 住所 | 埼玉県川口市戸塚東3丁目 | ||
| 交通 |
武蔵野線「東川口」駅 徒歩17分 埼玉高速鉄道「東川口」駅 徒歩17分 埼玉高速鉄道「戸塚安行」駅 徒歩18分 |
||
中古一戸建住宅
| 価格 | 4,280 万円 | ||
|---|---|---|---|
| 間取り | 4LDK | 築年月(築年数) | 2021年 1月 (築4年) |
| 建物面積 | 114.39㎡ | 土地面積 | 63.23㎡ |
| 住所 | 埼玉県川口市上青木西4丁目 | ||
| 交通 |
京浜東北線「西川口」駅 徒歩26分
|
||
【区画図】