中古マンション
「利回り」は、当該不動産の1年間の予定賃料収入の不動産取得対価に対する割合であり、公租公課その他当該物件を維持するために必要な費用の控除前のものです。
また、予定賃料収入が確実に得られる事を保証するものではありません。

ぜひ一度見ていただきたい、「パークシティ大宮セントラルタワー」です。いつでもゴミ出しができるので、衛生的です。オートロックが付いているので、空き巣などの危険も減らすことができます。広々した2LDKで一家団欒のときを過ごせます。LIXIL不動産ショップ小森設計はさいたま市中央区に詳しい不動産会社です。不動産の購入をご検討しているなら、当社にお問い合わせ下さい。

※地図上の物件位置は近隣に物件が所在することを表すものであり、実際の物件所在地とは異なる場合がございます。
048-813-8825
営業時間:09:00~18:00 / 定休日:水曜日
| 所在地 | 埼玉県さいたま市中央区上落合7丁目 7-2 | ||
|---|---|---|---|
| 交通 |
埼京線 「北与野」駅
徒歩12分 京浜東北線 「さいたま新都心」駅 徒歩16分 京浜東北線 「大宮」駅 徒歩19分 |
||
| 価格 | 5,199万円 | 管理費 | 10,930円 |
| 修繕積立金 | 14,670円 | 修繕積立基金 | |
| 所在階/階数 | 5階 / 33階建 地下1階 | 築年月(築年数) | 2000年 10月(築25年) |
| 専有面積 | 64.91㎡ | バルコニー面積 | 12.00㎡ |
| 建物構造 | 鉄筋コンクリート(RC) | 主要採光面 | |
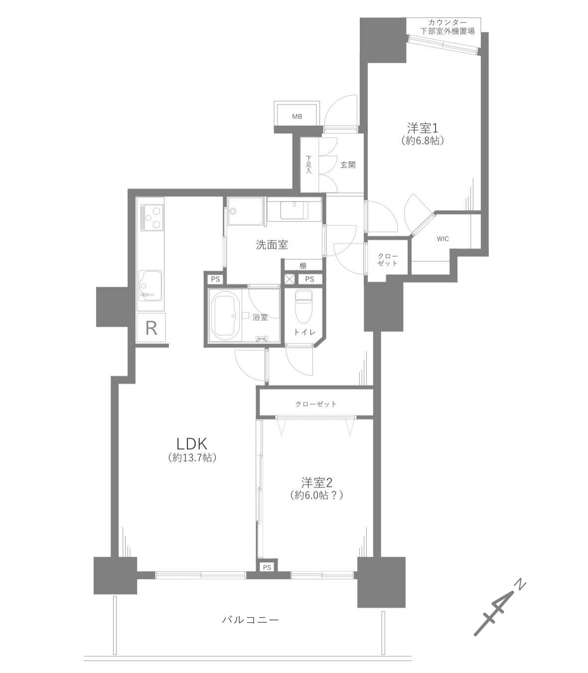
| 間取り |
2LDK
LDK 13.7帖 / 洋室 6.0帖 / 洋室 6.8帖 / |
||
| リフォーム | 内装リフォーム:2025年9月 | ||
| 引渡し | 相談 | ||
| 管理 | 管理形態:管理会社に全部委託、 管理員の勤務形態:日勤、 管理組合:有、 管理会社:三井不動産レジデンシャルサービス | ||
| 土地権利 | 所有権 | 用途地域 | 準工業地域 |
| 土地の権利形態 | |||
| 駐車場 | 月額料金:20,000円 | ||
| 設備条件 | 公共下水 / 公営水道 / 閑静な住宅地 / キッズルーム / 都市ガス / エレベーター / 宅配ボックス / 24時間緊急通報システム / 24時間ゴミ出し可 / ペット相談 / ペット飼育可 / 新婚さん向け / 室内洗濯機置場 / バルコニー / ガスコンロ / 食器洗い乾燥機 / システムキッチン / 追焚機能浴室 / 浴室乾燥機 / 温水洗浄便座 / ウォークインクロゼット / オートロック | ||
| その他条件 | |||
| 備考 | 「パークシティ大宮セントラルタワー」:さいたま市中央区エリアの新居にピッタリ。浴室乾燥機のあるお風呂場は洗濯物を干すときにも便利です。オートロック付き物件には部外者が無断で立ち入る事がないという安心感があります。当社はお客様の住まい探しをサポートし、快適な暮らしができるようにしっかりとお手伝い致します。住まい探しのご依頼は、メール又はお電話にてご連絡をお待ちしております。 | ||
| 周辺の学校 | さいたま市立上落合小学校(約250m / 徒歩4分)、さいたま市立与野東中学校(約1,000m / 徒歩13分) | ||
| 取引態様 | 仲介 | 物件番号 | 97718721 |
| 情報公開日 | 2026年2月14日 | 次回更新予定日 | 2026年2月28日 |
| 取引条件の有効期限 | 2026年2月28日 | ||
| 取扱い会社 |
小森設計株式会社 〒336-0017 埼玉県さいたま市南区南浦和2丁目40-12 埼玉県知事(9)第13293号 (公社)埼玉県宅地建物取引業協会会員 (公社)首都圏不動産公正取引協議会加盟 (公社)全国宅地建物取引業保証協会 |
||
048-813-8825
営業時間:09:00~18:00 / 定休日:水曜日
| 所在地 | 物件の住所を表示。(詳細住所は表示していない場合もある) | ||
|---|---|---|---|
| 交通 | 物件(部屋)の沿線駅・バス停を表示。(複数駅・バス停の利用が可能な場合は最大3件まで) | ||
| 間取り/詳細 | 数字は居室数を表示。LDKはそれぞれ「リビング」「ダイニング」「キッチン」、S(納戸)とは「納戸」「サービスルーム」「マルチルーム」「フリールーム」など建築基準法第28条に適合していないため、居室と認められない納戸その他の部分を表す。 | ||
| 価格 | 販売されている住戸の価格を表示。仲介手数料は含まない。 | ||
| 管理費 | 共同住宅の設備その他共用部分の維持および管理をするために必要な費用を表示。 | ||
| 修繕積立金 | 共用部分の修繕のために積立てる金額を表示。 | ||

中古マンション
| 価格 |
値下げ:2026/02/12 5,899 万円 | ||
|---|---|---|---|
| 間取り | 4LDK | 築年月(築年数) | 1992年 8月 (築33年) |
| 専有面積 | 82.53㎡ | 階数 | 35階建 |
| 住所 | 埼玉県さいたま市中央区上落合2丁目 | ||
| 交通 |
埼京線「北与野」駅 徒歩3分 京浜東北線「さいたま新都心」駅 徒歩9分 埼京線「与野本町」駅 徒歩18分 |
||
【外観】