中古マンション
「利回り」は、当該不動産の1年間の予定賃料収入の不動産取得対価に対する割合であり、公租公課その他当該物件を維持するために必要な費用の控除前のものです。
また、予定賃料収入が確実に得られる事を保証するものではありません。

床暖房の機能が付いています。リモートワークや料理中など自宅にいても手が離せないときには、宅配ボックスを利用することで再配達する必要がありません。綺麗に整備された中古マンションで清潔感を感じます。お引越しをするなら、生活に欠かせない施設が揃っている川口市で新たな住まいをお求めください。当社スタッフが新生活を快適にスタートできるよう、しっかりとサポート致します。

※地図上の物件位置は近隣に物件が所在することを表すものであり、実際の物件所在地とは異なる場合がございます。
048-813-8825
営業時間:09:00~18:00 / 定休日:水曜日
| 所在地 | 埼玉県川口市青木2丁目 | ||
|---|---|---|---|
| 交通 |
埼玉高速鉄道 「川口元郷」駅
徒歩18分 埼玉高速鉄道 「南鳩ヶ谷」駅 徒歩19分 |
||
| 価格 | 3,750万円 | 管理費 | 8,330円 |
| 修繕積立金 | 9,030円 | 修繕積立基金 | |
| 所在階/階数 | 9階 / 12階建 | 築年月(築年数) | 2009年 1月(築17年) |
| 専有面積 | 75.28㎡ | バルコニー面積 | 11.68㎡ |
| 建物構造 | 鉄筋コンクリート(RC) | 主要採光面 | |
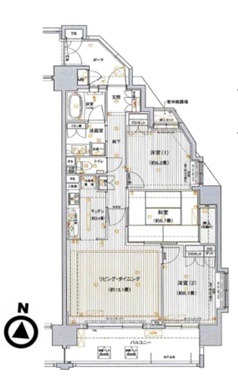
| 間取り |
3LDK
LDK 17.4帖 / 和室 4.5帖 / 洋室 6.2帖 / 洋室 5.5帖 / |
||
| リフォーム | |||
| 引渡し | 相談 | ||
| 管理 | 管理形態:管理会社に全部委託、 管理員の勤務形態:巡回、 管理組合:有、 管理会社:日本ハウズイング(株) | ||
| 土地権利 | 所有権 | 用途地域 | |
| 土地の権利形態 | |||
| 駐車場 | 空無 | ||
| 設備条件 | 公営水道 / エレベーター / 宅配ボックス / ファミリー向け / バルコニー / アルコーブ / カウンターキッチン / 浴室乾燥機 / 床暖房 / トランクルーム / オートロック | ||
| その他条件 | |||
| 備考 | 「サンデュエル川口青木」のここがイチオシ。浴室乾燥機のあるお風呂場は洗濯物を干すときにも便利です。地上12階建ての物件です。皆で仲良く生活できる3LDKの物件情報はこちらです。不動産のことでお悩みでしたら、LIXIL不動産ショップ小森設計へお気軽にお問い合わせ下さい。ご要望やご質問などあれば承ります。 | ||
| 周辺の学校 | 川口市立青木中央小学校(約585m / 徒歩8分)、川口市立青木中学校(約981m / 徒歩13分) | ||
| 取引態様 | 仲介 | 物件番号 | 102895273 |
| 情報公開日 | 2026年4月17日 | 次回更新予定日 | 2026年5月1日 |
| 取引条件の有効期限 | 2026年5月1日 | ||
| 取扱い会社 |
小森設計株式会社 〒336-0017 埼玉県さいたま市南区南浦和2丁目40-12 埼玉県知事(9)第13293号 (公社)埼玉県宅地建物取引業協会会員 (公社)首都圏不動産公正取引協議会加盟 (公社)全国宅地建物取引業保証協会 |
||
048-813-8825
営業時間:09:00~18:00 / 定休日:水曜日
| 所在地 | 物件の住所を表示。(詳細住所は表示していない場合もある) | ||
|---|---|---|---|
| 交通 | 物件(部屋)の沿線駅・バス停を表示。(複数駅・バス停の利用が可能な場合は最大3件まで) | ||
| 間取り/詳細 | 数字は居室数を表示。LDKはそれぞれ「リビング」「ダイニング」「キッチン」、S(納戸)とは「納戸」「サービスルーム」「マルチルーム」「フリールーム」など建築基準法第28条に適合していないため、居室と認められない納戸その他の部分を表す。 | ||
| 価格 | 販売されている住戸の価格を表示。仲介手数料は含まない。 | ||
| 管理費 | 共同住宅の設備その他共用部分の維持および管理をするために必要な費用を表示。 | ||
| 修繕積立金 | 共用部分の修繕のために積立てる金額を表示。 | ||

中古マンション
| 価格 |
値下げ:2026/02/23 3,190 万円 | ||
|---|---|---|---|
| 間取り | 3LDK | 築年月(築年数) | 1986年 7月 (築39年) |
| 専有面積 | 53.76㎡ | 階数 | 11階建 |
| 住所 | 埼玉県川口市金山町 | ||
| 交通 |
京浜東北線「川口」駅 徒歩12分 埼玉高速鉄道「川口元郷」駅 徒歩15分
|
||
中古マンション
| 価格 | 3,750 万円 | ||
|---|---|---|---|
| 間取り | 3LDK | 築年月(築年数) | 1991年 10月 (築34年) |
| 専有面積 | 62.00㎡ | 階数 | 10階建 |
| 住所 | 埼玉県川口市川口2丁目14-29 | ||
| 交通 |
京浜東北線「川口」駅 徒歩8分 埼玉高速鉄道「川口元郷」駅 徒歩18分 埼京線「北赤羽」駅 徒歩43分 |
||
中古マンション
| 価格 |
値下げ:2026/04/02 5,880 万円 | ||
|---|---|---|---|
| 間取り | 3LDK | 築年月(築年数) | 1994年 2月 (築32年) |
| 専有面積 | 76.11㎡ | 階数 | 29階建 |
| 住所 | 埼玉県川口市川口1丁目 | ||
| 交通 |
京浜東北線「川口」駅 徒歩12分 埼玉高速鉄道「川口元郷」駅 徒歩16分 南北線「赤羽岩淵」駅 徒歩26分 |
||
【外観】